
This RTM home is one of our newest designs built for a farm and it’s proving to be popular with customers.
From our designer Sharon Bailey: “This is a beautiful home with vaults, rakeheads, and dormers. You have everything you want in this house. I love the big entrance on this home, with the dormer shining down on you. Look at the interior pictures on this one, you’ll love it.”
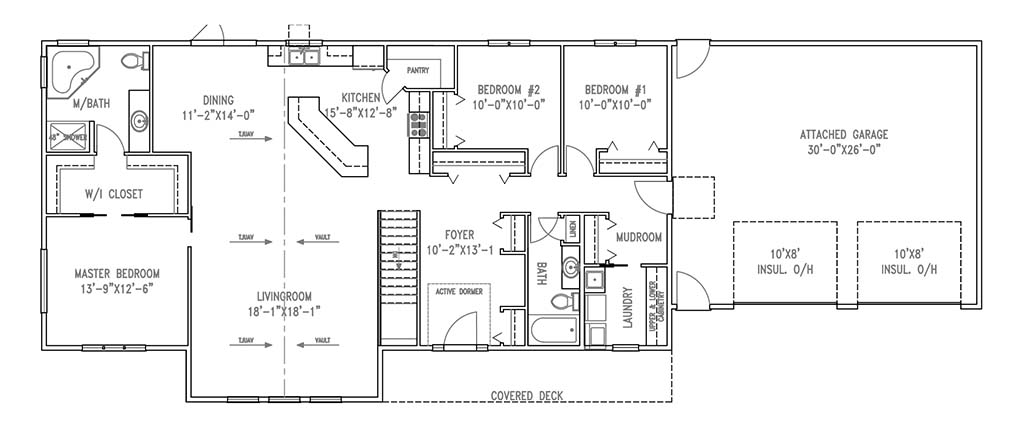
The master bedroom is very large, and off to one side, with the other two bedrooms separate from the master. There is also a laundry room, mudroom, and lots of closet space.
The kitchen is gorgeous, especially with the quartz countertops and big pantry.
Bedrooms: 3
Bathrooms: 2
Style: Bungalow
Vault: Yes
Additional Features:
Attached Garage, Dormers, Laundry, Mudroom, Quartz Countertop, Rakehead Windows, Separate Master Bedroom, Soaker Tub, Vaulted Ceiling, Walk-in Pantry
Please browse the plans on our site for home ideas, but keep in mind that most homes shown have been altered to meet the specific needs of our customers. Any design shown can be customized to best fit your needs.
